- Ref 690046005
- Ref 3970
- Type Duplex
- Ville LYON 9EME ARRONDISSEMENT
- Pièces 4
- Chambres NC
- Surface 90 m²
- Terrain NC
- Prix :
460 000 € *
!! SOUS OFFRE !!
RECENT - CALME - LUMINEUX - TERRASSE - GARAGE
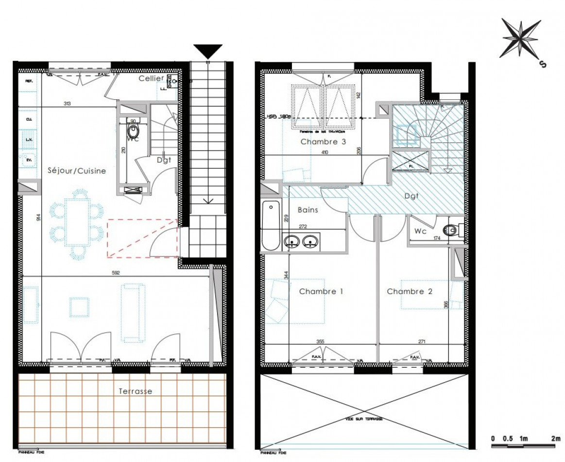
Au grand calme à 100m de St-Cyr-au-Mont-d'Or, ce T4 duplex de 90m2 (97 m2 utile) est situé au 1er et au 2ème étage (dernier étage) d'une résidence récente de 2018. Lumineux, il est orienté sud-ouest/nord-est. Il dispose d'une grande cave ainsi que d'un garage.
Au premier niveau se trouve sur 40 m2 un séjour/cuisine (meublée et équipée), un cellier, un wc et une grande terrasse de 15 m2 (exposée sud-ouest) donnant sur le jardin arboré de la copropriété.
A l'étage, le coin nuit dispose de 3 chambres en parquet, une salle de bains et un wc.
Local vélo aménagé
Chauffage individuel gaz
Volets roulants électriques
Fibre optique
Charges mensuelles : 120 € (entretien chaudière, espaces verts)
Taxe foncière : 1125 €
Bus 31 à 100m
Supermarché à 200m
Ecole à 250 m
Vidéo de l'appartement sur demande.
Le syndicat des copropriétaires fait l'objet de procédures menées sur le fondement des articles 29-1A et 29-1 de la loi n° 65-557 du 10 juillet 1965 et de l‘article L.615-6 du CCH.
Bien soumis au statut juridique de la Copropriété. Nb de lots : 77. Charges annuelles de copropriété (Montant moyen annuel quote-part du budget prévisionnel vendeur) : 1 472 €. Surface CARREZ : 90 m². Honoraires charge vendeur.
Loïc PAPILLON - Tél : 06 83 86 17 07 - Agent commercial en immobilier. Immatriculé au registre spécial des agents commerciaux. Ville du greffe : LYON. RSAC N° 809 056 138 - Réseau Casarèse. Mandat N° 3970. D'autres biens sur www casarese com !
Prix moyens des énergies indexés au 01/01/2021 (abonnement compris). Montant estimé des dépenses annuelles d'énergie pour un usage standard : entre 620 € et 880 € par an.
Notre barème d'honoraires
* Honoraires charge vendeur.
Ce bien ne figure plus au catalogue car il a été vendu.

Montant estimé des dépenses annuelles d'énergie pour un usage standard: entre 620,00€ et 880,00€ par an.
Prix moyen des énergies indexés au 01/01/2021 (abonnement compris)
Fax 09 85 65 95 83
- 38
- 53
- Bien
- 45.7699424
- 4.8037184
- /images/ggmap-marker.png
- click
-
DuplexLYON 9EME ARRONDISSEMENT - 90 m²
69440 SAINT LAURENT D'AGNY
Tel. 04 78 19 30 56
Fax 09 85 65 95 83






















