Disponibilité
Energy Performance
Certificate


Not subject to EPC, Article R 134-1 of the French Building and Housing Code
Energy Performance
Certificate


Contact
Our agency
- Ref 6900410182
- Ref 5860
- Type Office
- Town SAINT DIDIER AU MONT D'OR
- Rooms 1
- Bedrooms N/A
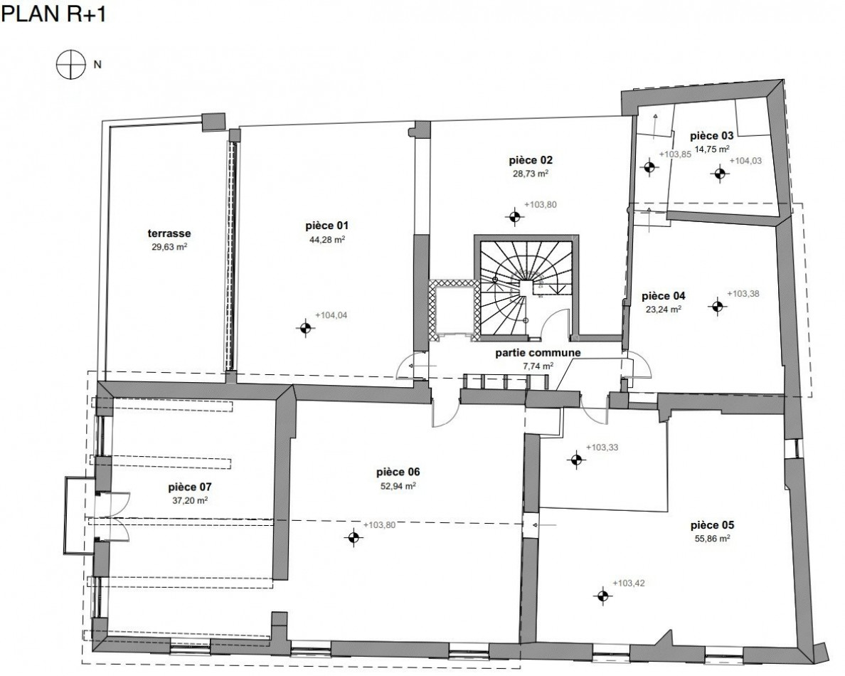
- Living Area 257 m²
- Land Area N/A
- Price :
1 220 000 €
Information on the risks to which this property is exposed is available on the website Géorisques
Our Fee Schedule
Around this offer :
Find schools, hospitals, shops...
- 38
- 53
- Bien
- 45.8175872
- 4.8009947
- /images/ggmap-marker.png
- click
-
OfficeSAINT DIDIER AU MONT D'OR - 257 m²
Casarèse
266 C Route du Ranfray69440 SAINT LAURENT D'AGNY
Tel. 04 78 19 30 56
Fax 09 85 65 95 83








